Piso en venta en Hedegile Kalea, Casco Viejo
- 159.000,00€
Overview
- Piso
- 3
- 2
- 1769180245-133
- 90 m²
Description
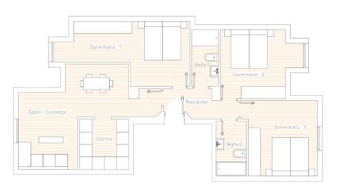
CASCO MEDIEVAL – Piso de 90 m2 distribuidos en 3 dormitorios, salón, cocina y 2 baños. Dispone de trastero. Calefacción y agua caliente individual de gas. Semiexterior Este-Oeste. Edificio de estructura de hormigón. No dispone de ascensor.
Descubre el encantador barrio de Casco Viejo, también conocido como Medieval, en el corazón de Vitoria. Este vibrante distrito es famoso por su amplia oferta de bares y comercios, convirtiéndose en uno de los principales destinos de ocio de la ciudad. Además, cuenta con servicios esenciales como un centro de salud y el centro cívico El Campillo, así como el colegio Ramón Bajo para las familias. No te pierdas la oportunidad de visitar la emblemática Catedral de Santa María, un verdadero símbolo turístico que realza la belleza y la historia de este fascinante barrio.
Address
-
City: Vitoria-Gasteiz
-
State/county: ÁLAVA
-
Country: SPAIN
Details
Updated on January 24, 2026 at 3:16 pm-
Property ID GRE1769180245-133
-
Price 159.000,00€
-
Property Size 90 m²
-
Bedrooms 3
-
Bathrooms 2
-
Property Type Piso
-
Property Status For Sale
Mortgage Calculator
-
Down Payment
-
Loan Amount
-
Monthly Mortgage Payment
-
Property Tax
-
Home Insurance
-
PMI
-
Monthly HOA Fees









