Apartment for sale in Calle Zalaeta, Monte Alto – Zalaeta – Atocha
- 550.000,00€
- 550.000,00€
Overview
- Piso
- 3
- 2
- 1769118111-448
- 116 m²
Description
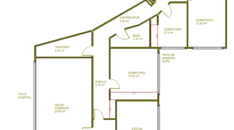
By visiting our website, you can view the property’s technical specifications with all the details and a floor plan showing the square footage of each room. You can also save a search and receive weekly emails with properties that match your criteria.
ZALAETA STREET (MONTEALTO – ADORMIDERAS) – 5th floor apartment WITH elevator for sale on Zalaeta Street. This apartment comprises three bedrooms, a spacious living-dining room, a kitchen, and two bathrooms. The living room overlooks Hospital Street with indirect views of the beach, while the rest of the apartment faces an interior courtyard. The apartment was renovated in 2000, although it requires some updating, and is being sold furnished (as seen in the photographs). The price includes a storage room in the attic and a parking space in the same building, accessible by elevator.
Our real estate agents specialize in specific areas to provide you with the best service and ensure you purchase a property at a fair market price. We also verify all property details (size, age, quality, etc.) and provide you with a fact sheet after each visit (including all features, a floor plan, information about the area, and any additional costs beyond the purchase price). Our hours are 10:00 AM to 2:00 PM and 4:00 PM to 8:00 PM, Monday through Friday.
This advertisement is not legally binding (it may contain errors). It is for informational purposes only and does not constitute a contract.
Address
Open on Google Maps-
City: A Coruña Capital
-
State/county: A CORUÑA
-
Country: SPAIN
Details
Updated on February 20, 2026 at 6:30 pm-
Property ID GRE1769118111-448
-
Price 550.000,00€
-
Property Size 116 m²
-
Bedrooms 3
-
Bathrooms 2
-
Property Type Piso
-
Property Status For Sale
Mortgage Calculator
-
Down Payment
-
Loan Amount
-
Monthly Mortgage Payment
-
Property Tax
-
Home Insurance
-
PMI
-
Monthly HOA Fees










